Продуманная инфраструктура и природная гармония
Жилой комплекс «Союзный» представляет собой уникальный архитектурный ансамбль из 6 неповторимых домов комфорт-класса. Дома отличаются своей прекрасной урбанистической системой для комфортного проживания. Это полноценный мини-город с уникальной экологией благодаря ландшафту и обилию лесного массива.
Современный детский сад «Кубик» на 245 мест
В «Кубике» будут организованы уютные и функциональные классы, кабинет логопеда, оборудованы музыкальные и спортивные залы, зоны отдыха.
Особое внимание уделено творческим аспектам развития детей: специальные зоны для музыкальных занятий, танцев и других видов искусства помогут раскрыть таланты каждого маленького жителя комплекса.
от МКАД
до МЦД-1 Одинцово
до ст. метро Кунцевская
до ст. метро Славянский бульвар
до Белорусского вокзала
до ст. метро Фили


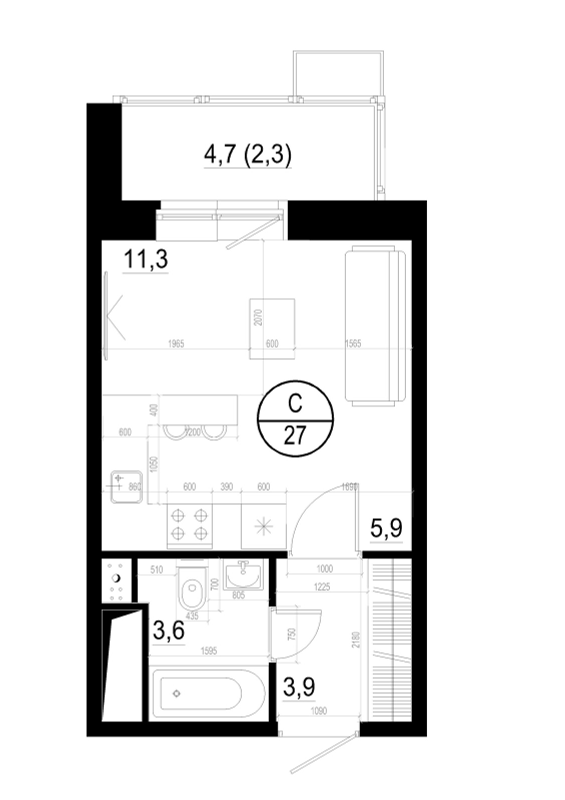
Функциональные планировки
Генплан